Ikerházak eladóak közvetlenül beruházótól Budajenőn

Kérjen időpontot a telkek bejárására értékesítőnktől, közvetlenül honlapunkon keresztül vagy kérjen visszahívást időpont egyeztetés végett.

01 Átnézeti látványterv

Hatalmas teraszok

A házakat 2 illetve 3 meggyőző méretű terasszal építjük meg, ahonnan még teljesebb panoráma nyílik a tájra.

02 Hatalmas teraszok

Panorámás házak

A házakból kiváló kilátás nyílik a Budai Tájvédelmi körzetre, Szőlődombra, Budajenőre.

03 Panorámás házak

Energiatakarékos házak

Hőszivattyús hűtés fűtéssel ellátott, 20 cm-es grafitos szigetelt házak garantálják a rendkívül alacsony rezsi költségeket. A házak napelem előkészítéssel kerülnek értékesítésre, igény szerint akár méretezett napelem rendszerrel.

04 Energiatakarékos házak

Átgondolt tervezés

Az épülő házakat, átgondolt tervezés, gépészet, szobabeosztás, terek jellemzik ideális akár 3 vagy 4 gyermekes családok részére is. Minden házban dolgozószoba is kialakításra kerül alkalmazkodva a vásárlói igényekhez.

05 Átgondolt tervezés
Bemutatkozik a Szőlőhegy Villapark

Bemutatkozik a Szőlőhegy Villapark

Cégünk 6 telken, 6 ütemben összesen 24 db ikerházat tervez megépíteni. Budajenő a természetkedvelő, nyugalmat preferáló, családias környezetre vágyók ideális lakóhelye. Budajenő közel Budapesthez, mégis távol a város zajától, kiváló levegővel megáldva, természetvédelmi övezet szomszédságában, gyönyörű táj által övezett medencében fekszik.

Látványtervek

Látványtervek
Látványtervek
Látványtervek
Látványtervek
Látványtervek
Látványtervek
Látványtervek

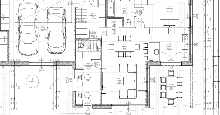
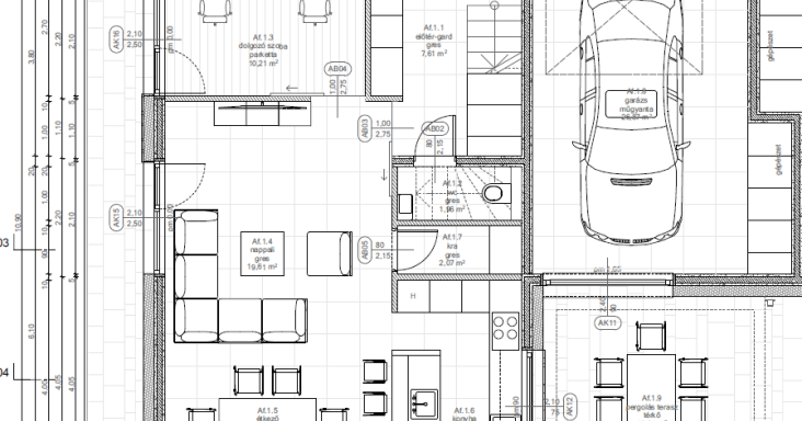
Alaprajzok

α - Alfa háztípus

α - Alfa háztípus

β - Béta háztípus

β - Béta háztípus

A házak jellemzői

A házak jellemzői

  • Panoráma
  • Hőszivattyús fűtés és hűtés
  • Napelem előkészítés
  • 20 cm grafitos hőszigetelés
  • Prémium design
  • Módosítási lehetőségek

Blog

Budajenőről röviden

Budajenőről röviden

Buda agglomerációjában, a városközponttól mindössze 22 km-re, Budakeszitől pedig csak 10 kilométerre fekszik Budajenő települése oxigéndús, zöld környezetben.

Budajenőn található óvodák, iskolák, létesítmények

Budajenőn található óvodák, iskolák, létesítmények

Budapest kertvárosi agglomerációjában, a természet ölelésében fekvő Budajenőn intézményekből is válogathatunk bőven.

Leier kéregpanel technológiai előnyei

Leier kéregpanel technológiai előnyei

Új építésű, modern, zöldövezeti ikerházainkat Leier kéregfal technológiával építjük meg.